$135,000 26 Gordon Street
Gander, Newfoundland & Labrador
Details
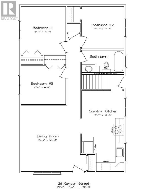
Welcome to 26 Gordon Street! If you’re ready to roll up your sleeves, this three bedroom, one bath bungalow with basement offers a solid starting point for investors or handy first-time homebuyers. On the main level, comfortable everyday living from the start. There’s a big, bright living room, an eat-in kitchen updated about ten years ago, three comfortable bedrooms, and a full bathroom. This home does need some love, but highlights include a newer 200 amp panel (2015), electric heat, vinyl windows, updated shingles (2015), and a paved driveway (2023). As per Seller’s Direction, all offers will be presented at 2pm on November 27th – please leave all offers open for acceptance until 7 pm the same day. (id:2887)
Property Specifics:
- MLS® Number 1292729
- Price $135,000
- Location Gander, Newfoundland & Labrador
- Building Type Single Family
- Style Bungalow
- Floor Space 1824
- Storeys 1
- Bedrooms 3
- Bathrooms (Full) 2
- Bathrooms (Partial) 1
- Flooring Laminate,Carpeted
- Heating Electric
- Sewer Municipal sewage system
- Garage No
Listing Agent
This listing provided by:
Keller Williams Platinum Realty - Gander
Phone:(709) 753-4454
Agent: Craig Loder


MLS®, REALTOR®, and the associated logos are trademarks of The Canadian Real Estate Association

