$695,000 373 Main Street N
Glovertown, Newfoundland & Labrador
Details
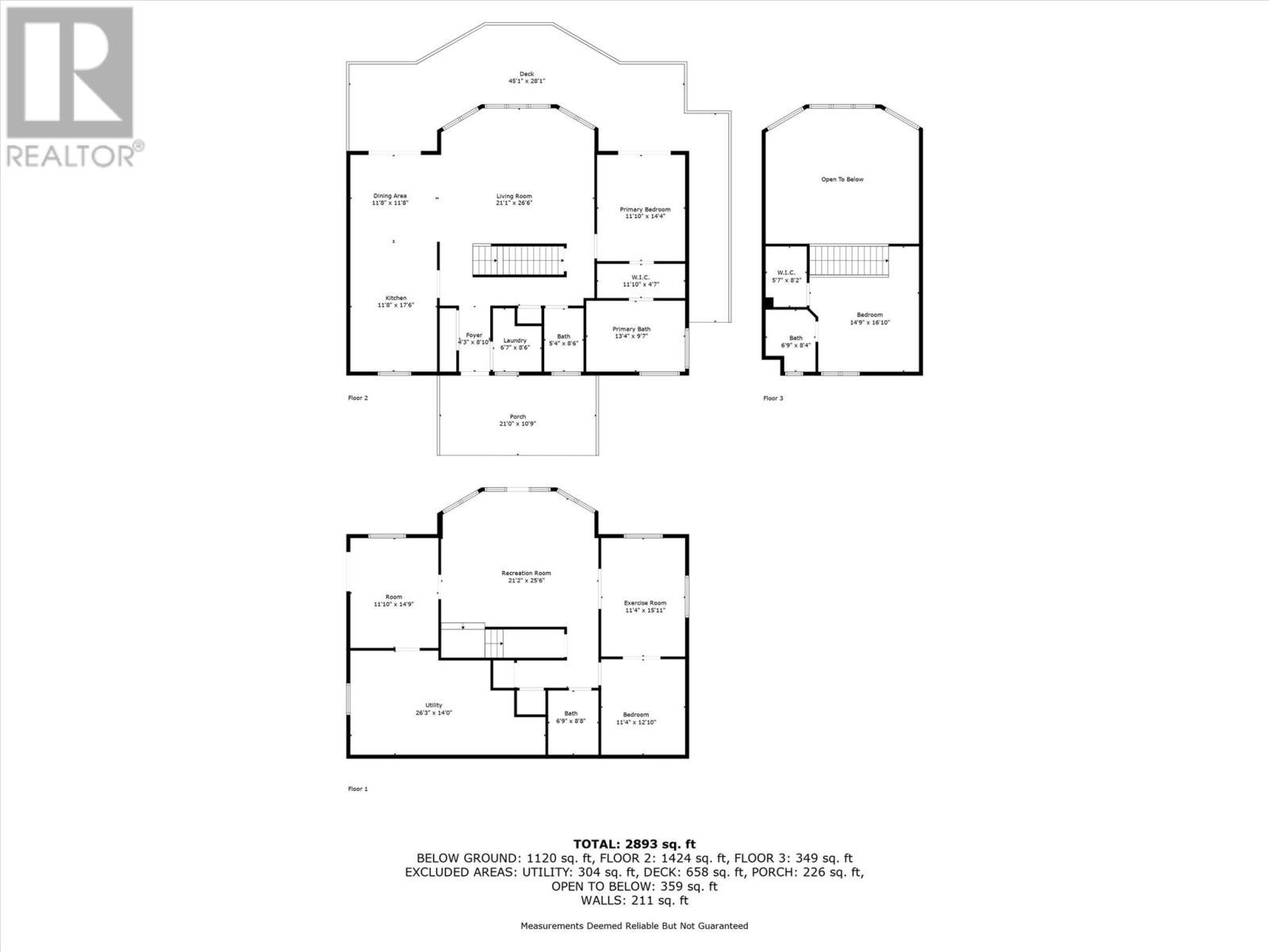
Welcome to 373 Main St. N., Glovertown—a beautiful home on 5.6 acres in one of Newfoundland’s most charming communities. Glovertown is known for its warm, welcoming atmosphere, vibrant community spirit, and proximity to the Eastport Peninsula and sandy beaches. Whether you’re after outdoor adventures, coastal views, or a close-knit community, Glovertown has it all. This custom-built chalet-style home, completed in 2012, blends modern comfort with natural beauty. With around 2900 sq ft, it features composite siding, a 400-amp panel, also for peace and reliability there is a hookup for a generator in case of a power outage. The home is equipped with in-floor heating, a central vacuum, and a new central heat pump installed six years ago for efficient climate control. Additional energy-efficient features include a fiberglass hot water tank and a wood-burning furnace. Enter through a large back foyer into an open-concept living area filled with natural light. The kitchen boasts a ceramic backsplash, plenty of cabinets, and large windows. The main floor hosts a luxurious primary bedroom with a walk-in closet and an en suite featuring a stand-up shower, Jacuzzi tub, and double sinks—perfect for relaxing after outdoor adventures. Upstairs, a loft with a queen bed, private bathroom, and spacious closet offers versatile guest space. The lower level includes a dry bar, additional bedroom, office, mechanical room, and another bathroom with a stand-up shower. The 30×40 insulated garage with concrete flooring, double doors, and a wood stove provides ample space for vehicles and hobbies. Enjoy outdoor trails on your property for walking, snowshoeing, or exploring. Glovertown offers a peaceful lifestyle with easy access to beaches, boating, fishing, and outdoor activities. This exceptional property combines luxury living with Newfoundland’s natural beauty—an opportunity not to be missed! (id:2887)
Property Specifics:
- MLS® Number 1287571
- Price $695,000
- Location Glovertown, Newfoundland & Labrador
- Building Type Single Family
- Floor Space 2893
- Storeys 1
- Bedrooms 3
- Bathrooms (Full) 4
- Bathrooms (Partial) 1
- Flooring Mixed Flooring
- Heating ,Wood,
- Sewer Septic tank
- Garage Yes
Listing Agent
This listing provided by:
Keller Williams Platinum Realty - Gander
Phone:(709) 753-4454
Agent: Carla Kinden


MLS®, REALTOR®, and the associated logos are trademarks of The Canadian Real Estate Association

