$479,000 23 Blandford Street
Gander, Newfoundland & Labrador
Details
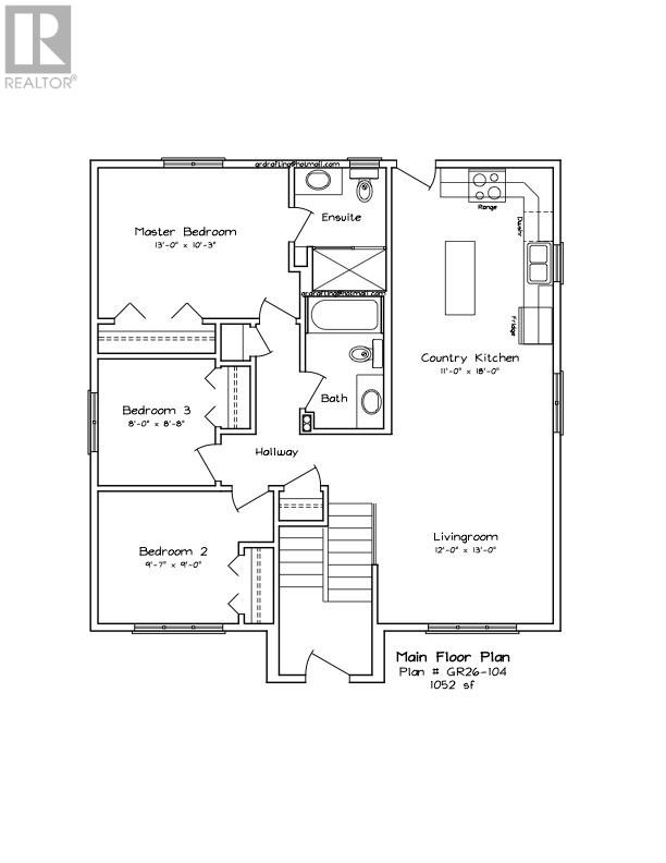
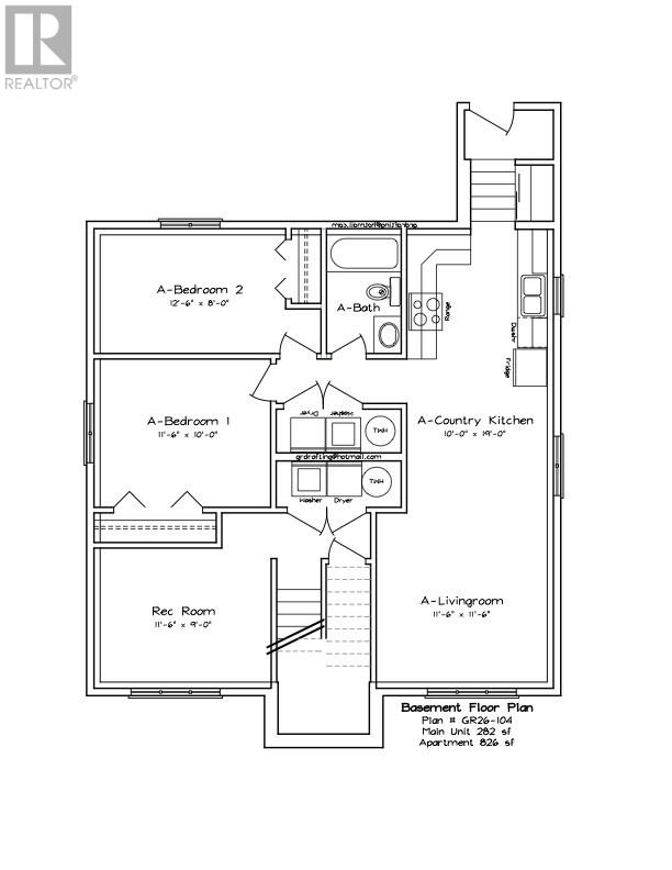
Welcome to 23 Blandford Street! Be the first person to own this brand new, yet-to-be constructed two apartment home. Modern construction, fresh finishes, and built-in rental income come together in one smart, forward-thinking property. On the main level, 1,000 sq. feet of bright, open concept living space with an easy, welcoming flow. Every detail will feel fresh, and every corner will feel new. Down the hall, a comfortable primary suite with an ensuite, plus two more good-sized bedrooms ideal for growing families, visiting guests, or a dedicated work-from-home space. A full three-piece bathroom and generous closet space add everyday practicality. On the lower level, a finished rec room ready for movie nights, hobbies, or the kids, and a separate laundry / utility area keeps everything organized and running smoothly. The best part? A self-contained two bedroom basement apartment, with approximately 825 sq. feet of thoughtfully planned living space. Two generous bedrooms paired with a bright, open-concept kitchen / living area creates a welcoming space for tenants or extended family, with monthly rental income help cover mortgage payments. Outside, you’ll have a sodded front lawn and plenty of parking with a double paved driveway, and you’ll have the opportunity to customize finishes, from flooring to fixtures, to make it your own. Plus, your new build will be covered by a 7 Year Atlantic Canada New Home Warranty. *Sample illustration – finishing touches and final specifications may vary* (id:2887)
Property Specifics:
- MLS® Number 1295784
- Price $479,000
- Location Gander, Newfoundland & Labrador
- Building Type Single Family
- Style 2 Level
- Floor Space 2170
- Bedrooms 5
- Bathrooms (Full) 3
- Bathrooms (Partial) 0
- Flooring Laminate
- Sewer Municipal sewage system
- Garage No
Listing Agent
This listing provided by:
Keller Williams Platinum Realty - Gander
Phone:(709) 753-4454
Agent: Craig Loder


MLS®, REALTOR®, and the associated logos are trademarks of The Canadian Real Estate Association

