$199,000 377 Pickersgill Boulevard
Centreville, Newfoundland & Labrador
Details
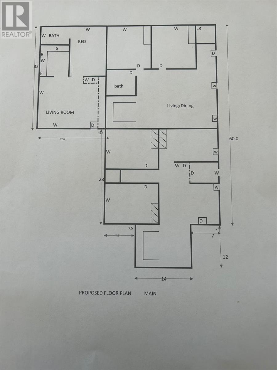
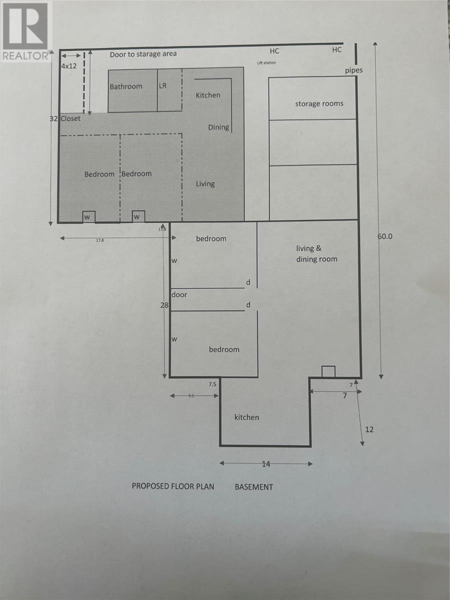
For sale: a nightclub that caters to events such as birthday parties, family gatherings, anniversaries and some weddings in the picturesque town of Centerville. This well-cared-for property is available at an affordable price. If you are considering a move to Newfoundland, this could be a great business opportunity for you. Or if you are from Newfoundland and looking for a business opportunity this business could also be for you. With a newly constructed two-bedroom apartment on the lower level you have living accommodations as well as a business. There is a set of drawings to accommodate five (4 +1) apartments if a buyer would prefer to convert the building into apartments. The building has had many upgrades in the last five years including metal roof, two heat pumps, new furnace & oil tank, new lighting, 3 bathrooms redone, some electrical upgrades, new carpet, new tables & chairs, 2-bedroom apartment constructed, etc etc. This could be the opportunity that you have been looking for. (id:2887)
Property Specifics:
- MLS® Number 1285817
- Price $199,000
- Location Centreville, Newfoundland & Labrador
- Building Type Retail
- Floor Space 4908
- Storeys 2
- Flooring Carpeted,Laminate,Mixed Flooring,Other
- Heating Oil,Geo Thermal
- Garage No
Listing Agent
This listing provided by:
EXIT Realty Aspire
Phone:(709) 738-3948
Agent: DOROTHY NEWMAN


MLS®, REALTOR®, and the associated logos are trademarks of The Canadian Real Estate Association

