$149,900 43 Aspen Main OTHER
Aspen Cove, Newfoundland & Labrador
Details
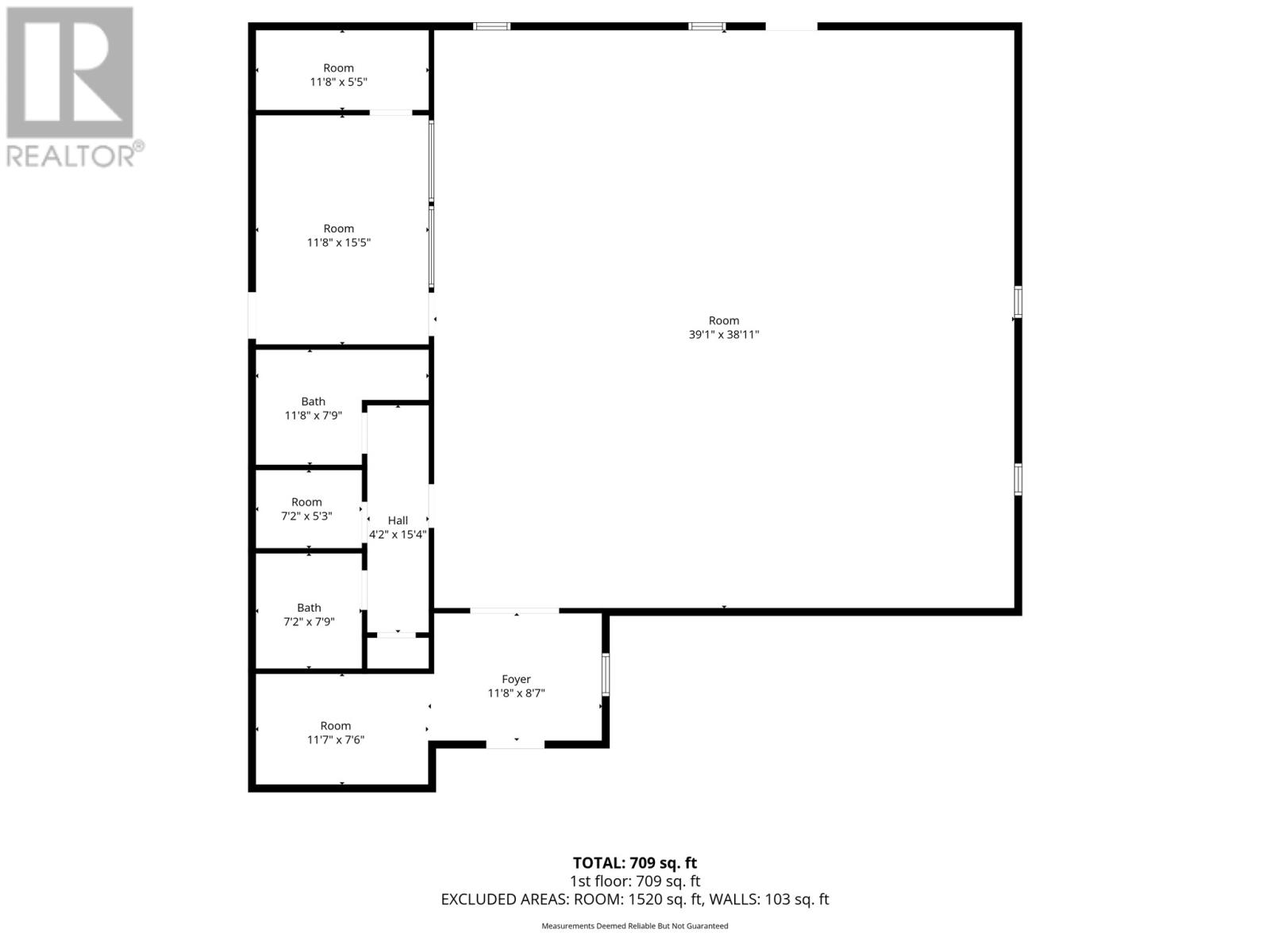
Welcome to 43 Aspen Main, Aspen Cove, NL, a unique and versatile coastal property offering exceptional potential in a striking natural setting. The 2,080 sq ft structure, beautifully renovated, is currently configured for residential use but was previously zoned commercial and can be readily returned to that designation, opening the door to increased square footage and flexible development possibilities. Situated on a generous 17,793 sq ft lot, the property offers ample space for expansion, reconfiguration, or future development. Inside, the layout provides a blank canvas for buyers to customize the interior to suit residential, commercial, or mixed-use needs. A professionally designed floor plan, prepared to specification by a specialized engineer, is available for those seeking a clear and efficient path to completion. Overlooking Newfoundland’s rugged coastline, the property enjoys sweeping ocean views with sightlines extending toward the shores of Fogo Island. The dramatic landscape creates a remarkable backdrop and elevates the appeal of this rare offering. Significant infrastructure upgrades enhance both comfort and long-term value, including a septic system installed approximately 13 years ago, a new artesian well, and two energy-efficient mini-split heat pumps providing reliable heating and cooling. An outstanding opportunity for investors, entrepreneurs, or homeowners seeking a customizable, well-improved property in a scenic and strategically located coastal community where vision and location come together. (id:2887)
Property Specifics:
- MLS® Number 1294115
- Price $149,900
- Location Aspen Cove, Newfoundland & Labrador
- Building Type Single Family
- Style Bungalow
- Floor Space 2080
- Storeys 1
- Bedrooms 3
- Bathrooms (Full) 2
- Bathrooms (Partial) 2
- Flooring Carpeted,Marble,Ceramic
- Heating Electric,
- Sewer Septic tank
- Garage No
Listing Agent
This listing provided by:
eXp Realty
Phone:(709) 800-0412
Agent: Hillary Hodder


MLS®, REALTOR®, and the associated logos are trademarks of The Canadian Real Estate Association

